
Auf den ersten Blick überschaubar, dann aber doch sehr inhaltsreich und diskussionsintensiv war die Tagesordnung, die der Bodenwöhrer Gemeinderat in seiner fast dreieinhalbstündigen öffentlichen Gemeinderatssitzung am Donnerstagabend abzuarbeiten hatte. Hierbei ging es vor allem um die Änderung des Flächennutzungs- und Bebauungsplanes für das „Industriegebiet Blechhammer Forst“, den Bebauungsplan des Marktes Bruck für einen REWE-Markt, die Umgestaltung der Ludwigsheide und zum 3. Male um die Errichtung eines Funkmastes in Blechhammer. Mit Walter Spirk, Michael Weindler, Carina Hoffmann (CSU), Alfred Brosig (BLB) und Stefan Rauch (SPD) fehlten zwar fünf Gemeinderäte, das Gremium sei aber beschlussfähig, so Bürgermeister Georg Hoffmann (CSU) eingangs.


Mehrere Aufträge an Firmen vergeben
Zunächst wurde das Protokoll der letzten Gemeinderatsitzung vom 25.09.2025 einstimmig genehmigt.
Anschließend gab Hoffmann folgende Beschlüsse aus dem nichtöffentlichen Teil der gleichen Sitzung bekannt: Der Ankauf eines gemeindeeigenen Grundstückes in der Weihersiedlung durch Sebastian Gruber unterhalb seines Hauses wurde abgelehnt. Zur Sanierung des alten Bahnhofes wurden die Estricharbeiten an die Fa. Gerner Fliesen & Estrich GmbH aus Regensburg zum Angebotspreis von 39.699,59 Euro und die Trockenbauarbeiten an die Fa. Haydn + Oberneder Akustikbau GmbH & Co.KG aus Salzweg bei Passau für 97.025 Euro vergeben. Die Fa. Huber und Rappl aus Rötz erhielt den Auftrag die Gemeindeverbindungsstraße zwischen Pingarten und Taxöldern für 197.563 Euro zu sanieren, was inzwischen schon erledigt wurde. Beim nächsten Tagesordnungspunkt (TOP), dem Antrag von Frau Maria Merthan aus Nittenau auf Bau eines Einfamilienhauses mit Garage und Schuppen unmittelbar hinter dem ehemaligen Gasthof Pöll am Bahnweg in Obererzhäuser, wurde einstimmig das Einvernehmen erteilt. Das bestehende Gebäude wird weggerissen.


Freie Wähler gegen Erweiterung des Industriegebietes
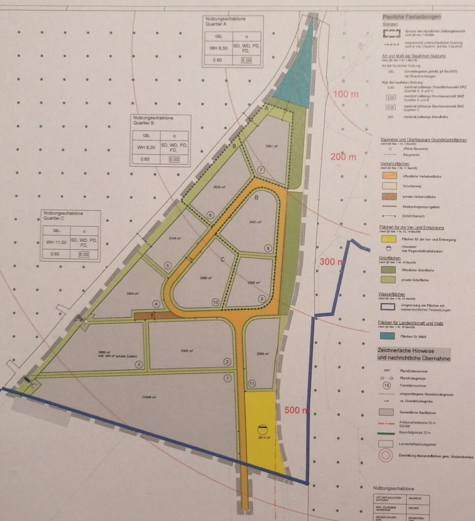
Regen Diskussionsbedarf gab es bei den nächsten vier TOP‘s, bei denen es um die Änderung des Flächennutzungs- bzw. den Bebauungsplan zur Erweiterung des Industriegebietes „Blechhammer Forst“ in Richtung Pechmühle ging Bei beiden Plänen wurde in den zurückliegenden Monaten die frühzeitige Anhörung der Träger öffentlicher Belange durchgeführt. Wegen des fehlenden Umweltberichtes musste sie wiederholt werden. Herr Patrick Brindl vom Ingenieurbüro Preihsl & Schwan stellte die zahlreich eingegangenen Stellungnahmen vor. Zum Beispiel forderte das Landratsamt Immissionsschutz ein Schallschutzgutachten, die untere Naturschutzbehörde eine artenschutzrechtliche Prüfung, die Handwerkskammer Niederbayern/Oberpfalz ein Einzelhandelsverbot und die Regierung der Oberpfalz eine Begründung für den Bedarf des Industriegebietes. Das Amt für Ernährung, Landwirtschaft und Forsten kritisierte die Lage des Industriegebietes in einem Wasserschutzgebiet. Einstimmig beschloss das Gremium bei beiden Plänen die eingegangenen Hinweise zu überarbeiten und zu ergänzen. Als es dann aber um die Billigung der beiden Pläne selbst ging, stimmten Albert Krieger, Johann Fritsch, Verena Obermeier und Christian Lutter (alle FW) dagegen. Lutter begründete dies mit den zahlreich eingegangenen Einwänden, der Lage des Gebietes in einem Wasserschutzgebiet und weil Wald gefällt werden muss.

Bodenwöhrer gegen REWE-Markt in Bruck
Beim nächsten TOP ging es um den geplanten REWE-Markt in Bruck, der auf dem Feld zwischen Bruck und Mögendorf direkt an der Schöngraser Straße entstehen soll und im Markt Bruck selbst schon für kontroverse Diskussionen sorgte. Bürgermeister Hofmann stand dem Vorhaben sehr kritisch gegenüber und sah den nur 1,3 km entfernten Bodenwöhrer Edeka-Markt in seiner Existenz und damit eine ortsnahe Einkaufsmöglichkeit bedroht. Außerdem entziehe man durch den außerhalb von Bruck liegenden Vollsortimenter den Gewerbetreibenden in der Ortsmitte die Existenzgrundlage. Sowohl Andreas Seitz (CSU) als auch Albert Krieger, Verena Obermeier und Christian Lutter sprachen sich gegen den REWE-Markt aus. Alois Feldmeier (BLB) war auch dagegen und meinte, dass REWE nur ein Geschäft mit den Pendlern nach Regensburg, die direkt daran vorbeifahren, machen wolle. Einstimmig lehnte das Gremium den Bebauungsplan ab.

Workshop zur Umgestaltung der Ludwigsheide
Als nächstes stellte Professor Georg Sahner die Ergebnisse eines Workshops zur Umgestaltung des Ortsteils Ludwigsheide vor. Der alte Friedhof soll von der Gemeinde erworben und in einen besinnlichen Park mit Baumkonzept, klarer Abgrenzung zum Campingplatz und ggf. Integration des Kriegerdenkmals umgestaltet werden, so eine erarbeitete Forderung. Die Aussegnungshalle soll als Raum der Ruhe und Begegnung genutzt werden, so Sahner. Die angedachte Umgehungsstraße aus Richtung Taxöldern über die Klause zur Schwandorfer Straße sowie verkehrsberuhigende Maßnahmen für die Straße Ludwigsheide selbst, wie Verkehrsinseln, wurden von den Bewohnern nicht begrüßt. Dagegen wurden Rad- und Fußgängerweg sowie Längsparkplätze gewünscht, erläuterte Sahner. Durch die Campingplatznutzer und die Besucher der Brauerei/des Gasthofes Jacob dürfe die Verkehrssituation in der Ludwigsheide nicht weiter belastet werden, so eine weitere Forderung. Das Areal „Weichselbrunn“ soll so bleiben, wie es ist, teilte Sahner mit, vor allem wurde die Erweiterung um einen Wohnmobilstandort abgelehnt.
Friedhof ist das Facebook der alten Leute
„Wasch mich, aber mach mich nicht nass“, meinte Alois Feldmeier zu den Ergebnissen, „sind wir jetzt schlauer als zuvor, die Anwohner stört der Verkehr, man will aber keine Umgehungsstraße?“ Außerdem riet er davor ab, den Friedhof zu kaufen, da dies in der Bevölkerung zu heiß diskutiert werde. „Es ist wichtig, die Ängste, Befürchtungen und Bedenken der Anwohner zu kennen“, antwortete Sahner, „außerdem sind die unterschiedlichen Meinungen gegeneinander abzuwägen“. „Der Friedhof sei das Facebook der alten Leute“, so Lutter, „deshalb fände er es richtig, wenn daraus ein ruhiger und besinnlicher Park entstehen würde“. Andreas Seitz schlug vor, mit der Kirche zusammenzuarbeiten, den Ortsteil gemeinsam zu entwickeln und nicht vor den Problemen wegzulaufen.

Kommt Funkmast nach Blechhammer?
Bereits in seinen Sitzungen vom 30.04.2025 und 26.06.2025 sprach sich das Gremium gegen den Bau eines rund 55 m hohen Funkmastes in Blechhammer durch die Deutsche Funkturm GmbH aus, weil man einen größeren Abstand zum nur rund 100 m östlich gelegenen Wohngebiet „Im Kugelschlag“ forderte. Daraufhin erstellte das Landratsamt einen Baugenehmigungsbescheid. Dagegen hat die Gemeinde dann form- und fristgerecht Klage beim Verwaltungsgericht Regensburg erhoben. Um einen gemeinsamen Konsens zu finden, nahmen am Donnerstag der für den Behördenfunk zuständige Stefan Klein vom Bayerischen Landeskriminalamt und Kreisbrandrat Christian Demleitner an der Sitzung teil. Für die Behördenfunkabdeckung von Bodenwöhr und Blechhammer wäre der Funkmast auf dem Gänskopf in Bruck vorgesehen, so Klein. Infolge der dazwischen liegenden Hügel Rands- und Birkenberg lägen beide Orte jedoch in einem Funkschatten. Durch den neuen Mobilfunkmast, den die Deutsche Funkturm GmbH im Auftrag der Telekom baut und den man mitnützen dürfte, könne man die Funkversorgung sicherstellen.


Keine Funkverbindung in Bodenwöhr möglich
Demleitner führte aus, dass er schon selbst in der Hammerseehalle festgestellt hätte, dass keine Funkverbindung gegeben ist. Betroffen hiervon wären nicht nur die Feuerwehren, sondern auch die Polizei, Rettungsdienste und sonstige Hilfsorganisationen. Alois Feldmeier meinte, dass man im Gremium nicht gegen den Funkmast wäre, sondern nur gegen den Standort und kritisierte zudem die Kommunikation mit dem Landratsamt. Auf Nachfrage von Verena Obermeier teilte Demleitner mit, dass die Einsatzkräfte im Notfall nicht alarmiert und erreicht werden könnten. Christian Lutter kritisierte, dass viele Funkmasten nicht gemeinsam durch die Mobilfunkanbieter genutzt werden, sondern jeder seinen eigenen Turm baut. Die Antwort auf die Frage von Johann Fritsch, ob trotz des neuen Mastens noch Funkschatten möglich wären, musste aus Geheimhaltungsgründen in den nichtöffentlichen Teil der Sitzung verschoben werden. Eine Absage erhielt der Vorschlag von Albert Krieger, den Funkmast in Bruck einfach zu erhöhen.









